
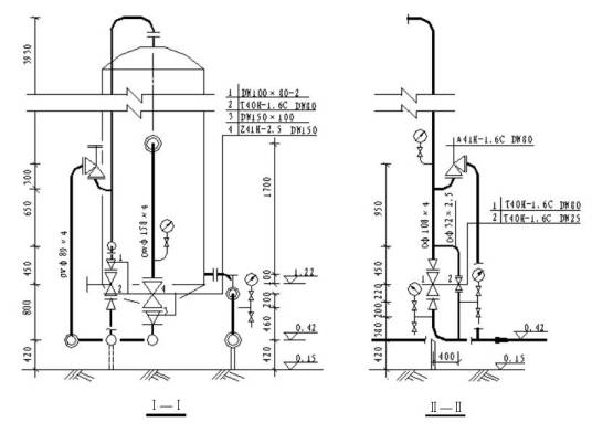
管路图是用标准所规定的各种图形符号和代号绘制而成的。管路图示符号包含管线、管件、阀件、联接等图示符号和物料代号等组成。管路的工艺流程图和总平面布置图是管路图的基础,对任何不同的管路都必须用标准所规定管路图示符号绘制,从而表达出管路的走向和相互间的位置关系。当局部管路较密集,用整体图表达欠清楚时,可画出其局部放大图。
想要了解更多“管路图”的信息,请点击:管路图百科

管路图是用标准所规定的各种图形符号和代号绘制而成的。管路图示符号包含管线、管件、阀件、联接等图示符号和物料代号等组成。管路的工艺流程图和总平面布置图是管路图的基础,对任何不同的管路都必须用标准所规定管路图示符号绘制,从而表达出管路的走向和相互间的位置关系。当局部管路较密集,用整体图表达欠清楚时,可画出其局部放大图。
想要了解更多“管路图”的信息,请点击:管路图百科